Однокімнатна квартира у Теплий будинок Плюс
Однокімнатна квартира у Теплий будинок Плюс
ціна: 50000 $
Характеристики
Комнат
1
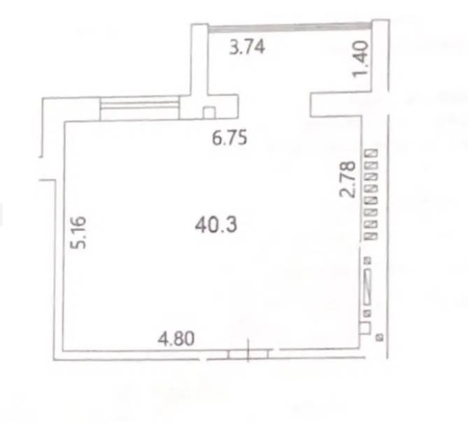
Общая
40.3 м2
Кухня
16 м2
Этаж
10
Этажность
10
Контакти менеджерів з продажу
-
вул. Сахарова 24, м.Одеса
Запит інформації по об'єкту
На мапі

Опис
Пропонується до продажу однокімнатна квартира в новому житловому комплексі на Семена Палія. Загальна площа 40,3 кв.м., простора кухня 16 кв.м. Частково зроблено ремонт. Підключено воду, розведено електрику. Зроблено штукатурку стін.
У санвузлі покладена плитка, ванна, раковина, змішувачі, тумба, унітаз, сушка для рушників.
Закрита територія, відеоспостереження, охорона.
При відключенні електроенергії працює ліфт та водопостачання. На даху будинку є сонячні панелі.







